Risultati della ricerca

Torrino Mezzocammino – via A. Cascella

In trattativa
Città: Roma     Zona/quartiere: Torrino Mezzocammino
Scheda PDF

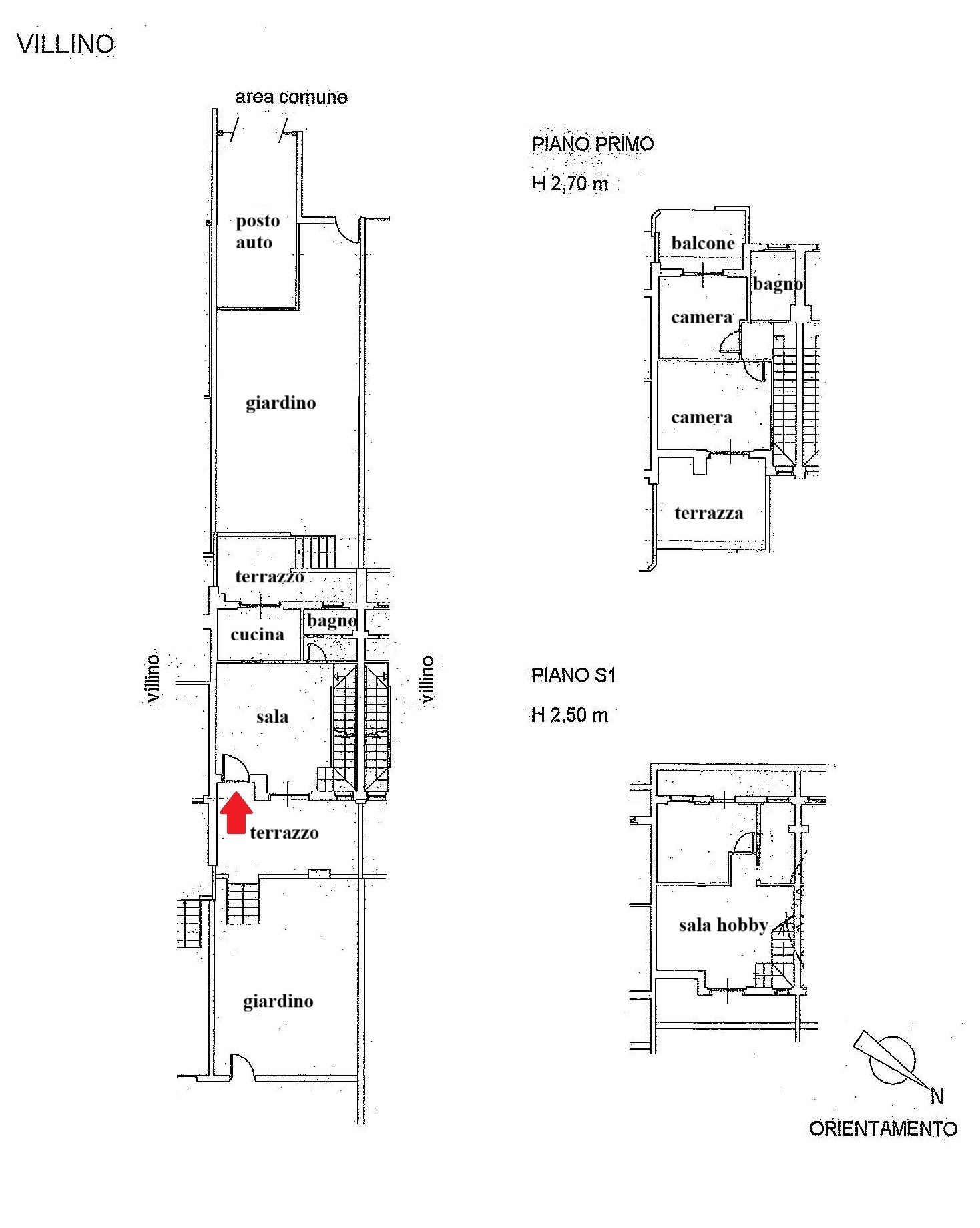
Nella splendida cornice verde del quartiere Torrino Mezzocammino, in via Andrea Cascella, a pochi passi dai servizi e dall’area commerciale, all’interno di un elegante complesso residenziale denominato Bouganvillea, dotato di ampie zone verdi attrezzate, proponiamo la vendita di una silenziosa e rifinita villa a schiera su tre livelli per un totale di circa 130mq coperti, in eccellenti condizioni abitative, con un giardino sul fronte e un giardino sul retro per un totale di circa 110mq, terrazzi, balconi e due posti auto scoperti di proprietà.

  • Piano rialzato: soggiorno, cucina, antibagno e bagno, due terrazzi e due giardini uno dei quali con entrata carrabile
  • Piano primo: disimpegno, due camere da letto  servite da un terrazzo e un balcone vivibile, un bagno e una soffitta.
  • Piano seminterrato:  ampia e rifinita sala hobby composta da: soggiorno con camino, uno studio, una camera, un bagno e una piccola zona lavanderia.

Alcune rifiniture: camino, aria condizionata in tutti i piani, marmo, parquet, tende da sole, porta blindata, inferriate, predisposizione sistema di allarme, infissi in legno doppio vetro e zanzariere, teleriscaldamento.

 

Id Immobile : 17684
Superficie Coperta: 130 m2
Superficie Scoperta: 160 m2
Locali: 5
Camere da Letto: 3
Bagni: 3
Piano: Tre livelli
Barriere Architettoniche: Presenti
Ingresso: Doppio
Cucina: Abitabile
Tipo Di Edificio: In cortina e pittura
Stato Edificio: Ottimo
Anno Di Costruzione: 2017
Parcheggio: Si
Affaccio: Nel Verde
Esposizione: Est- ovest
Stato Di Manutenzione: Eccellente
Impianti: A norma
Infissi: Legno doppio vetro
Spese Condominiali: 110 mensili
Riscaldamento: Autonomo
Categoria Catastale: A/7
Classe Energetica : B
EPgl,nren (kWh/m2 Anno): 89,31
EPgl,ren (kWh/m2 Anno): 113,92
Prestazione Energetica Fabbricato Inverno: Bassa
Prestazione Energetica Fabbricato Estate: Bassa
Cantina
Soffitta
Ripostiglio
Armadi a muro
Porta Blindata
Inferriate
Impianto di Allarme
Videocitofono
Cablaggio Rete Dati
Camino
Aria Condizionata
Spazi Verdi Condominiali
Cancello Elettrico

Confronto Immobili

Annunci simili

Marina di San Nicola

22 70 m2
Villetta a schiera a due passi dal mare, a Marina di San Nicola, località ...
Villetta a schiera a due passi dal mare, a Marina di San Nicola, località estiva alle porte di Roma, dove ...
€ 435.000